移動CT車(客車底盤)-顯浩品質、冠軍服務





車載CT技術參數:
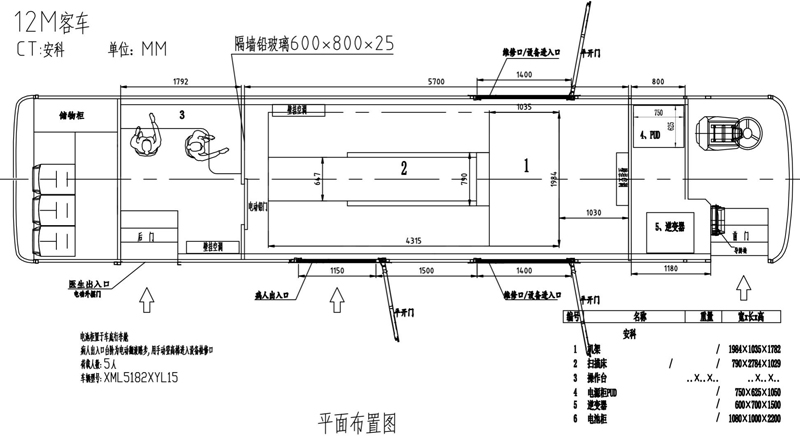
車型 XML5182XYL15
外型尺寸mm 12000×2550×3600
公告座位(人) 2-5
底盤配置
車身配置 承載式車身
電器配置
發動機
YC6L310-50
座椅
米黃色仿皮座椅
空調
非獨立頂置式松芝空調(SZR-
V/F-D)28500-34400kcal/h
功率kW/rpm
228/2200
扭矩N.m/rpm
1150/1200-1700
行李倉
貫通式8.4m3,鋪地板革
暖風
除霜器
離合器
國產Φ 430膜片彈簧
后視鏡
手動
視聽系統
MP3播放器
離合操縱形式
液壓操縱
內飾
凱歌新款內飾(風尚版),無行李架
行車記錄儀
GPS、平臺管理
變速箱
法士特6DS100T
車載監控系統
無
變速操縱形式
遠距離兩軟軸
內側面
纖維板覆皮革
高位剎車燈
有
前橋
東風6.5T
側窗
最后兩側窗為內置推拉,其余全封閉鋼化
電/氣喇叭
電喇叭
后橋
東風11T
閱讀燈
有
行車制動
前盤后鼓雙回路氣壓制動
外推式應急窗
無
空調霧化泵
無
駐車制動
儲能彈簧駐車制動
自動破窗器
側窗四個
倒車監視器
有
輔助制動
特爾佳2100N.M
司機窗
手動
儀表形式
威帝CAN總線
轉向器
動力轉向器
儀表臺
凱歌新款儀表臺
電子鐘
有
電控制動系統
國產ABS
司機椅
絨布減震三向可調
調整臂
國產自動間隙
窗簾
半幅遮陽簾/全車窗簾
懸掛系統
10/12鋼板懸掛
行李倉門
上掀式鋁合金
輪胎
雙錢295/80R22.5
天窗
兩個(帶換氣扇)
油箱
260L
乘客門
前中氣動外擺門,帶遙控鎖
安全帶
伸縮式
護攔
噴塑管,無導游靠背
地板
灰色地板革
滅火裝置
發動機艙自動滅火裝置
以上僅供參考,詳細參數以及設備配置請咨詢公司業務員!
聯系人:13922709440 余先生
固 話:86-020-86059537
服務熱線:400-800-8232
郵 箱:xianhao266@163.com
公 司:廣州市顯浩醫療設備股份有限公司
廣州總部地址:廣州市黃埔區開源大道188號十三棟1301室
湖北公司地址:湖北省鐘祥市經濟開發區協企聯盟園區C6、C7棟